Envoi email en cours...
REFERENCE N° APPA613
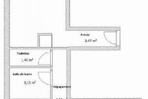
Caractéristique du bien
- Surface habitable (Carrez)64 m²
- Nombre de pièce(s)3
- Chambre(s)2
- Salles de bains / d'eau1
- Stationnement/parkingOui
- Exposition du salonSud
- Etage3
- Ascenseur
- Honoraires à la charge de l'acquéreur5.00 %
- Charges de copropriété 1549 € /an
- Fonds de travaux78 € /an
- Nombre lots principaux39
- Procédures en coursNon
- Taxe foncière1358 €
Performances énergétiques
Consommation énergétique
Emission de gaz
Estimation du coût annuel énergie pour une utilisation standard (chauffage, eau chaude sanitaire, climatisation, éclairage, auxiliaires) entre 0€ et 0€.
Prix moyens des énergies indexés (abonnements compris) en 2020.
Prix moyens des énergies indexés (abonnements compris) en 2020.
Photos non contractuelles
Le informations sur les risques auxquels ce bien est exposé sont disponibles sur le site Géorisque : www.georisques.gouv.fr











